|
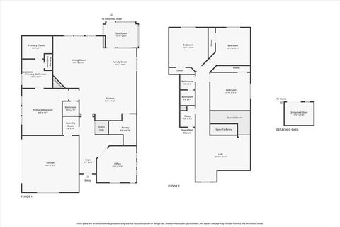
Welcome to 4425 Massey Meadows in Midlothian, a move-in ready home offering space, comfort, and a peaceful backyard setting that's hard to find. With 4 bedrooms, 2.5 baths, and multiple living areas, this well-designed home blends functionality with thoughtful updates throughout. As you enter, you're greeted by a private front office with French doors, perfect for working from home or managing daily tasks. The room enjoys terrific natural light and features two walls of custom built-in cabinets, providing exceptional storage. Custom top-down, bottom-up shades allow you to maintain privacy while still letting in beautiful natural light. The main living areas downstairs feature durable plank tile flooring, giving you the look of wood with easy maintenance, ideal for busy households and pet owners. The primary suite is conveniently located downstairs, providing a private retreat and features engineered wood floors. Upstairs, you'll find a large loft area that works perfectly as a second living room, game room, media space, or play area. This flexible space adds valuable room for relaxation or entertaining. Also upstairs are three generously sized bedrooms, a full hall bathroom, and a large hall closet that offers excellent additional storage. Two of the upstairs bedrooms overlook one of the home's best features"”the peaceful backyard setting. The property backs to a greenbelt and pond with a walking trail, providing added privacy and scenic views with no immediate neighbors directly behind you. Just off the dining area is a cozy screened porch, the perfect place to enjoy your morning coffee while listening to birds chirp"”bug free. Beyond that, the outdoor space continues with an extended patio and pergola. A small storage shed provides convenient space for lawn tools and outdoor equipment. With recently installed new carpet, durable flooring, and a functional layout, this move-in ready home offers both comfort and convenience in a desirable Midlothian location.
| LAST UPDATED | 3/6/2026 | TRACT | Massey Mdws |
|---|---|---|---|
| YEAR BUILT | 2020 | GARAGE SPACES | 2.0 |
| COUNTY | Ellis | STATUS | Active |
| PROPERTY TYPE(S) | Single Family |
| School District | Midlothian ISD |
|---|---|
| Elementary School | Longbranch |
| Jr. High School | Walnut Grove |
| High School | Heritage |
| ADDITIONAL DETAILS | |
| AIR | Central Air, ENERGY STAR Qualified Equipment |
|---|---|
| AIR CONDITIONING | Yes |
| AMENITIES | Maintenance Grounds |
| APPLIANCES | Dishwasher, Disposal, Electric Range, Microwave |
| CONSTRUCTION | Brick |
| FIREPLACE | Yes |
| GARAGE | Yes |
| HEAT | Central, ENERGY STAR Qualified Equipment, ENERGY STAR/ACCA RSI Qualified Installation |
| HOA DUES | 450|Annually |
| INTERIOR | Double Vanity, Eat-in Kitchen, Granite Counters, High Speed Internet, Kitchen Island, Open Floorplan, Pantry, Walk-In Closet(s) |
| LOT | 9453 sq ft |
| LOT DESCRIPTION | Greenbelt |
| PARKING | Driveway, Garage Faces Side, Kitchen Level, Attached |
| SEWER | Public Sewer |
| STORIES | 2 |
| STYLE | Traditional |
| SUBDIVISION | Massey Mdws |
| TAXES | 7174 |
| UTILITIES | Cable Available |
| WATER | Public |
MORTGAGE CALCULATOR
TOTAL MONTHLY PAYMENT
0
P
I
*Estimate only
| SATELLITE VIEW |
| / | |
We respect your online privacy and will never spam you. By submitting this form with your telephone number
you are consenting for Daniel
Harker to contact you even if your name is on a Federal or State
"Do not call List".
Listing provided by Andria Moore, CENTURY 21 Judge Fite Company
This data was last updated on: 3/7/26 4:40 AM PST
This IDX solution is (c) Diverse Solutions 2026.
