|
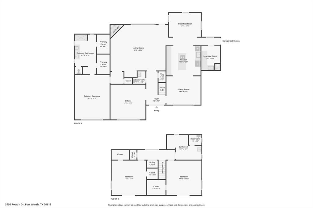
Tucked within the desirable Ridglea Hills community is an amazing opportunity, a mostly transformed home that's about 90% complete. The heavy lifting is done: electrical, plumbing fixtures, hvac, roof, flooring, and cabinetry are already finished. What remains are minor cosmetic improvements and touch-ups, giving you the chance to customize the final look and unlock the property's full potential. With a projected ARV $750K+, supported by strong Ridglea Hills comps this property is ideal for investors or end-buyers wanting quick equity. You're not starting a project"”you're finishing one that's nearly complete. Paint, trim, and final details are all that stand between you and a market-ready home in one of Fort Worth's most established zip codes. The structure is solid, the layout flows, and the profit is in the polish. Neighborhood appeal Ridglea Hills is celebrated for its tree-lined streets, spacious lots, and central location. Quick access to the Cultural District, Clearfork retail, and major commuter routes make it a consistent performer for resale or long-term hold. Imagine unveiling a refreshed, modern home where design and craftsmanship meet. With the fundamentals already completed, you can focus purely on the cosmetic details that drive emotion"”and value. Once finished, you're positioned for a potential resale above $750,000. The framework is solid, the finish line is in sight, and the upside is clear. Bring your vision, your final touches, and capture the reward in this nearly finished gem in Ridglea Hills. Mark your calendars and come tour this home during one of the scheduled open houses on Nov 8th & 9th.
| LAST UPDATED | 11/1/2025 | TRACT | Ridglea Hills Add |
|---|---|---|---|
| YEAR BUILT | 1976 | GARAGE SPACES | 2.0 |
| COUNTY | Tarrant | STATUS | Active |
| PROPERTY TYPE(S) | Single Family |
| School District | Fort Worth ISD |
|---|---|
| Elementary School | Ridgleahil |
| Jr. High School | Monnig |
| High School | Arlngtnhts |
| ADDITIONAL DETAILS | |
| AIR | Ceiling Fan(s), Central Air |
|---|---|
| AIR CONDITIONING | Yes |
| APPLIANCES | Dishwasher, Disposal, Electric Cooktop, Electric Oven, Electric Range |
| FIREPLACE | Yes |
| GARAGE | Yes |
| HEAT | Central |
| INTERIOR | Granite Counters, Kitchen Island, Vaulted Ceiling(s), Walk-In Closet(s) |
| LOT | 0.3798 acre(s) |
| LOT DESCRIPTION | Cleared |
| PARKING | Driveway, Attached |
| STORIES | 2 |
| STYLE | Traditional |
| SUBDIVISION | Ridglea Hills Add |
| UTILITIES | Cable Available, Electricity Available, Electricity Connected, Phone Available |
| WATER | Public |
MORTGAGE CALCULATOR
TOTAL MONTHLY PAYMENT
0
P
I
*Estimate only
| SATELLITE VIEW |
| / | |
We respect your online privacy and will never spam you. By submitting this form with your telephone number
you are consenting for Daniel
Harker to contact you even if your name is on a Federal or State
"Do not call List".
Listing provided by David Russell, eXp Realty LLC
This data was last updated on: 11/3/25 7:03 AM PST
This IDX solution is (c) Diverse Solutions 2025.
