|
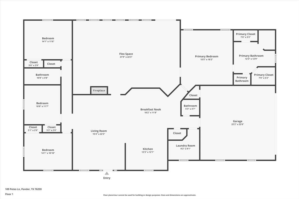
This stunning custom-built home in Ponder, TX sits on a private 2-acre lot with no HOA and thoughtful upgrades inside and out. Designed for both everyday living and entertaining, the property features a saltwater pool with hot tub, fully equipped outdoor kitchen, and pergola surrounded by fresh landscaping and new sod (2025). Inside, enjoy 4 spacious bedrooms, 2.5 bathrooms, and 2,691 sq. ft. of single-level living with luxury vinyl plank flooring, fresh paint, new light fixtures, and a beautifully updated kitchen with granite countertops, stainless steel appliances, and generous storage. The oversized primary suite boasts dual walk-in closets, a freestanding tub, two-person walk-in shower, and a custom feature wall that adds a designer touch. Additional highlights include a large game room, upgraded secondary bath with dual sinks, freshly stained exterior, and a 2-car garage. Offering space, privacy, and modern comfort, this property captures the best of country living just minutes from city conveniences. Listing agent is the property owner.
| LAST UPDATED | 10/9/2025 | TRACT | Ranchmans Estates Ph 2 |
|---|---|---|---|
| YEAR BUILT | 2006 | GARAGE SPACES | 2.0 |
| COUNTY | Denton | STATUS | Active |
| PROPERTY TYPE(S) | Rental Properties |
| School District | Ponder ISD |
|---|---|
| Elementary School | Ponder |
| Jr. High School | Ponder |
| High School | Ponder |
| ADDITIONAL DETAILS | |
| AIR | Central Air, Electric |
|---|---|
| AIR CONDITIONING | Yes |
| APPLIANCES | Dishwasher, Disposal, Double Oven, Electric Cooktop, Electric Oven, Electric Water Heater, Microwave |
| CONSTRUCTION | Brick |
| EXTERIOR | Lighting, Outdoor Kitchen, Private Yard, Rain Gutters |
| FIREPLACE | Yes |
| GARAGE | Yes |
| HEAT | Central, Electric |
| INTERIOR | Built-in Features, Eat-in Kitchen, Granite Counters, High Speed Internet, Open Floorplan, Walk-In Closet(s) |
| LOT | 1.92 acre(s) |
| LOT DESCRIPTION | Few Trees, Interior Lot, Landscaped, Level, Subdivided |
| PARKING | Driveway, Garage Faces Side, Attached |
| POOL | Yes |
| POOL DESCRIPTION | In Ground, Salt Water |
| SEWER | Septic Tank |
| STORIES | 1 |
| STYLE | Traditional |
| SUBDIVISION | Ranchmans Estates Ph 2 |
| UTILITIES | Cable Available |
| WATER | Public |
MORTGAGE CALCULATOR
TOTAL MONTHLY PAYMENT
0
P
I
*Estimate only
| SATELLITE VIEW |
| / | |
We respect your online privacy and will never spam you. By submitting this form with your telephone number
you are consenting for Daniel
Harker to contact you even if your name is on a Federal or State
"Do not call List".
Listing provided by Shawna Martinez, Real Broker, LLC
This data was last updated on: 11/3/25 2:27 PM PST
This IDX solution is (c) Diverse Solutions 2025.
