|
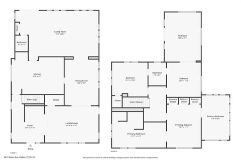
Step into a storied Dallas legacy at 5617 Swiss Avenue, where timeless architecture and refined modern updates converge in one of the city's most celebrated historic neighborhoods. Built in 1919 and beautifully maintained, this residence captures the enduring charm of early 20th-century design while offering modern conveniences and amenities. With nearly 4,000 square feet of living space, the interiors balance history with livability. Formal living and dining areas feature high ceilings, classic molding, and abundant natural light, ideal for entertaining. A thoughtfully designed chef's kitchen anchors the home, complete with dual granite-topped islands, custom cabinetry, and top-tier appliances"”including a professional gas range, double ovens, wine refrigerator, and integrated storage. Artistic lighting fixtures add a touch of flair, while the open flow between kitchen, family, and dining spaces ensures a seamless entertaining experience. Owner prefers to lease furnished. Casita is not included. Prefer 12 mo + lease. Pets case by case. Gardening and pool service included with lease.
| LAST UPDATED | 10/17/2025 | TRACT | Munger Place |
|---|---|---|---|
| YEAR BUILT | 1919 | GARAGE SPACES | 2.0 |
| COUNTY | Dallas | STATUS | Active |
| PROPERTY TYPE(S) | Rental Properties |
| School District | Dallas ISD |
|---|---|
| Elementary School | Lipscomb |
| Jr. High School | Long |
| High School | Woodrow Wilson |
| ADDITIONAL DETAILS | |
| AIR | Ceiling Fan(s), Central Air, Electric |
|---|---|
| AIR CONDITIONING | Yes |
| APPLIANCES | Built-In Gas Range, Built-in Refrigerator, Dishwasher, Disposal, Double Oven, Dryer, Gas Water Heater, Microwave, Refrigerator, Trash Compactor, Washer |
| BASEMENT | Yes |
| CONSTRUCTION | Brick |
| EXTERIOR | Balcony, Courtyard, Garden, Lighting, Outdoor Grill, Outdoor Kitchen, Private Yard, Rain Gutters |
| GARAGE | Yes |
| HEAT | Central, Natural Gas |
| HOA DUES | Annually |
| INTERIOR | Built-in Features, Chandelier, Double Vanity, Eat-in Kitchen, Granite Counters, High Speed Internet, Kitchen Island, Natural Woodwork, Pantry |
| LOT | 0.373 acre(s) |
| LOT DESCRIPTION | Few Trees, Interior Lot, Landscaped, Level, Subdivided |
| PARKING | Additional Parking, Driveway, Electric Gate, Garage Door Opener, Garage Faces Front, Gated, Golf Cart Garage, Oversized, Private |
| POOL | Yes |
| POOL DESCRIPTION | In Ground, Pool Sweep |
| SEWER | Public Sewer |
| STORIES | 2 |
| STYLE | Colonial, Prairie |
| SUBDIVISION | Munger Place |
| UTILITIES | Cable Available |
| WATER | Public |
MORTGAGE CALCULATOR
TOTAL MONTHLY PAYMENT
0
P
I
*Estimate only
| SATELLITE VIEW |
| / | |
We respect your online privacy and will never spam you. By submitting this form with your telephone number
you are consenting for Daniel
Harker to contact you even if your name is on a Federal or State
"Do not call List".
Listing provided by Lindsay Reyes, Christies Lone Star
This data was last updated on: 10/30/25 12:16 PM PDT
This IDX solution is (c) Diverse Solutions 2025.
