|
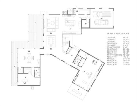
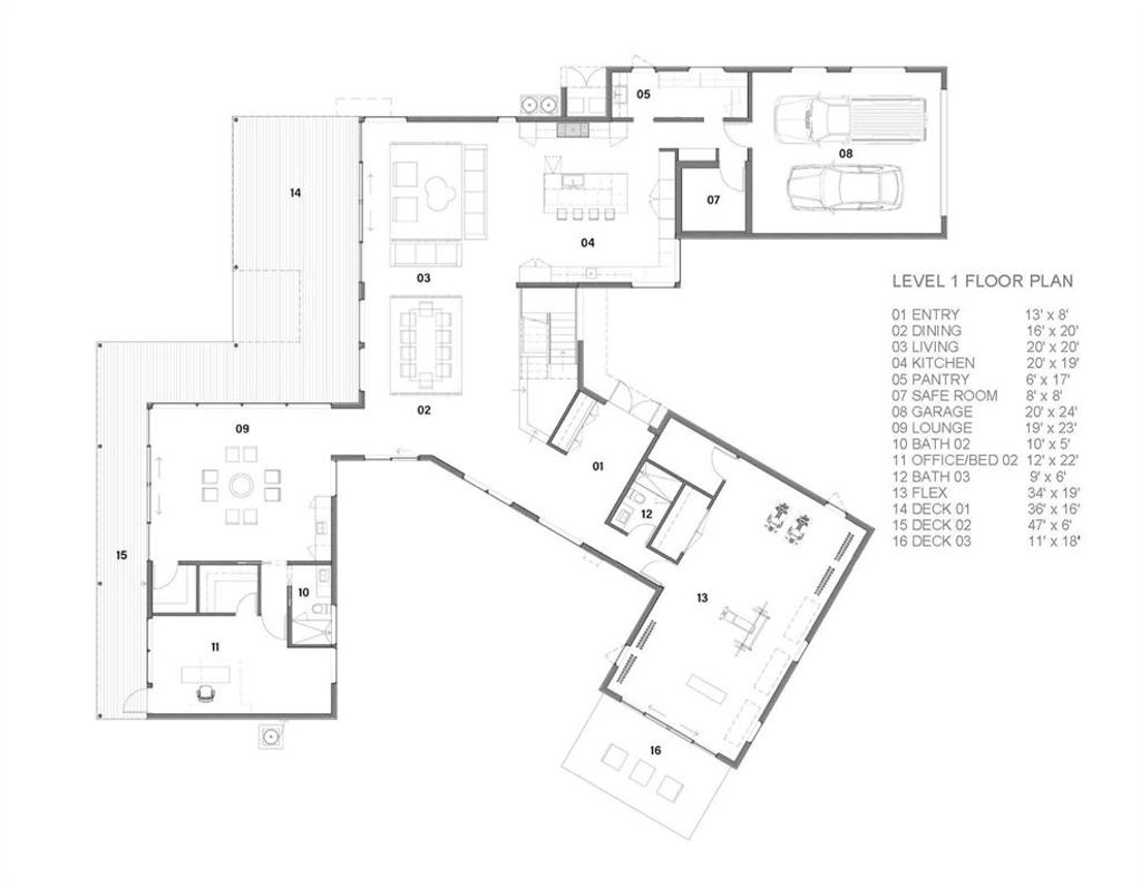
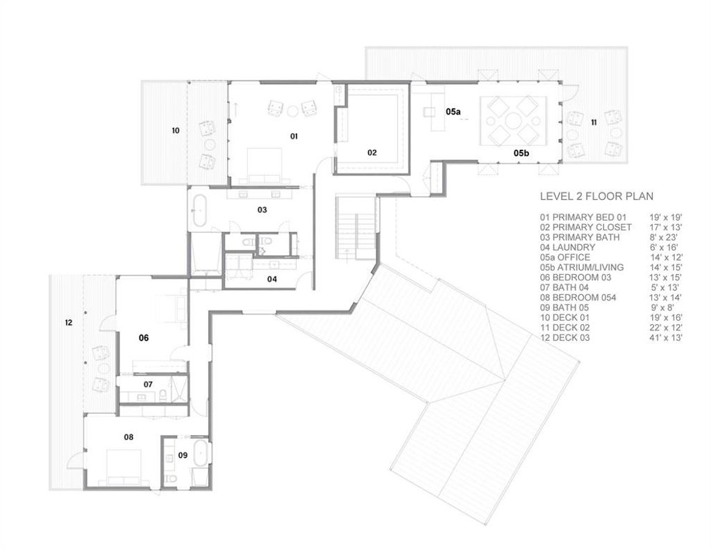
Privacy, Luxury, Proximity and Endless Lake Views! Welcome to a rare opportunity to own lakefront property on Eagle Mountain Lake. This exquisite 2.43-acre estate boasts a stunning 6,343sf luxury home, currently under construction, with impeccable attention to detail and premium custom features throughout. Designed by renowned architects Far + Dang, built by luxury home builder LR Fine Homes, interior design by Susan Semmelmann, with custom tile curation by Erin Adams Designs this estate promises to be a unique refuge upon completion. With the highest elevations and deepest waters of Eagle Mountain Lake, this house was designed with floor to ceiling windows for natural light, jaw dropping panoramic views and unlimited sunsets. For the true gourmet a kitchen with custom cabinetry, Subzero, Wolf and BlueStar appliances, custom wine case, wet bar and scullery. The spacious primary suite features a private patio, fireplace, coffee bar, large bathroom and custom closet. An indoor atrium ideal for growing herbs and enjoying morning sunrises. The property has an additional 1,200sf air conditioned garage providing ample space for vehicles, with a detached 360sf air conditioned building, perfect for an office or art studio. A newly constructed dock awaits, complete with a boat slip and two jet ski lifts. Over 2,000sf of outdoor deck space with a 40' long pool, tanning ledges and heated spa. Gated entry, solar power, with room for sports courts or helipad. Adjacent to the neighborhood is the 3,621-acre Fort Worth Nature Preserve. Downtown Fort Worth is only 14 miles and the Stockyards 11 miles, YeeHaw!
| LAST UPDATED | 6/4/2025 | TRACT | Samora, Bernadino Survey |
|---|---|---|---|
| YEAR BUILT | 2025 | GARAGE SPACES | 5.0 |
| COUNTY | Tarrant | STATUS | Active |
| PROPERTY TYPE(S) | Single Family |
| School District | Azle ISD |
|---|---|
| Elementary School | Eagle Heights |
| Jr. High School | Azle |
| High School | Azle |
| ADDITIONAL DETAILS | |
| AIR | Ceiling Fan(s), Central Air, Electric |
|---|---|
| AIR CONDITIONING | Yes |
| APPLIANCES | Built-in Refrigerator, Convection Oven, Dishwasher, Disposal, Electric Cooktop, Electric Oven, Electric Water Heater, Ice Maker, Microwave, Refrigerator, Vented Exhaust Fan, Warming Drawer, Water Purifier, Wine Cooler |
| CONSTRUCTION | Cedar, Frame, Stucco, Wood Siding |
| EXTERIOR | Balcony, Boat Slip, Courtyard, Dock, Outdoor Grill, Private Yard, Rain Gutters, Uncovered Courtyard |
| FIREPLACE | Yes |
| GARAGE | Yes |
| HEAT | Active Solar, Central, Electric, Exhaust Fan, Fireplace Insert, Heat Pump, Solar |
| INTERIOR | Built-in Features, Cathedral Ceiling(s), Chandelier, Double Vanity, Granite Counters, High Speed Internet, Kitchen Island, Natural Woodwork, Open Floorplan, Pantry, Smart Home, Vaulted Ceiling(s), Walk-In Closet(s), Wired for Sound |
| LOT | 2.43 acre(s) |
| LOT DESCRIPTION | Cleared, Landscaped, Many Trees, Rock Outcropping, Waterfront |
| PARKING | Driveway, Electric Vehicle Charging Station(s), Garage, Garage Door Opener, Garage Faces Front, Heated Garage, Kitchen Level, Lighted, Boat, Attached |
| POOL | Yes |
| POOL DESCRIPTION | Gunite, Heated, In Ground, Pool/Spa Combo |
| SEWER | Septic Tank |
| STORIES | 2 |
| STYLE | Contemporary/Modern |
| SUBDIVISION | Samora, Bernadino Survey |
| UTILITIES | Electricity Connected |
| VIEW | Yes |
| VIEW DESCRIPTION | Water |
| WATERFRONT | Yes |
| WATERFRONT DESCRIPTION | Lake Front |
MORTGAGE CALCULATOR
TOTAL MONTHLY PAYMENT
0
P
I
*Estimate only
| SATELLITE VIEW |
| / | |
We respect your online privacy and will never spam you. By submitting this form with your telephone number
you are consenting for Daniel
Harker to contact you even if your name is on a Federal or State
"Do not call List".
Listing provided by Andy Scott, Dave Perry Miller Real Estate
This data was last updated on: 10/30/25 3:44 PM PDT
This IDX solution is (c) Diverse Solutions 2025.
